压力校验仪表
  温度校验仪表
  数字显示仪表
  液位物位仪表
  流量测量仪表
  温度测量仪表
  压力测量仪表
  电线电缆配件
 
常见问题与解答 - BYM—WQ文丘里喷嘴技术参数说明

BYM—WQ文丘里喷嘴技术参数说明

点击次数:1068 发布时间:2013-12-18
 
BYM—WQ文丘里喷嘴技术参数说明
BYM—WQ文丘里喷嘴按国标GB/T2624-93进行设计制造,按JJG640-94进行检定。无需实流标定。文丘里喷嘴所要求上、下游直管段短、压力损失小、性能稳定、维护方便,广泛应用于石油、化工、电力、冶金、污水测量等行业。
适用范围
1、公称直径:65mm≤DN≤500mm
2、公称压力:PN≤10MPa
3、孔径比:0.316≤β≤0.775
4、雷诺数范围:1.5×10 5≤ReD≤2×10 6
5、精度:1级
结构形式
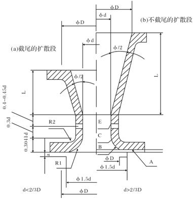
文丘里喷嘴由收缩段、圆筒形喉部和扩散段组成,其取压方式为上游取压口为角接取压,下游取压口为喉部取压,具体结构见下图。
文丘里喷嘴扩散段的扩散角Ψ≤30°,扩散段的长度L对流出系数无影响,但影响其压力损失,可以像经典文丘里管一样,把文丘里喷嘴截尾。
 
型谱规格及说明
型 号 规 格
说 明
 
BYM—WQ
 
文丘里喷嘴
介质
 
Y
 
液体
 
Q
 
气体
 
Z
 
蒸汽
连接方式
 
1
 
法兰连接
 
2
 
对焊连接
法兰材质
 
C
 
碳钢
 
S
 
不锈钢
 
O
 
其它
公称压力
 
025
 
0.25MPa
 
06
 
0.6MPa
 
10
 
1MPa
 
 
……
 
100
 
10MPa
公称直径
 
-65
DN65
 
-80
DN 80
 
-100
DN 100
 
……
 
-500
DN 500
 
 
金湖虹润仪表有限公司主要经营压力校验仪,温度校验仪,压力校验台,流量计,数字显示仪,无纸记录仪,压力变送器,磁翻板液位计,压力表,热电偶,热电阻,双金属温度计等现场仪表和校验仪表系列。为我国工业自动化仪器仪表提供最优的产品和服务是我们不懈的追求。

版权所有:金湖虹润仪表有限公司 电话:0517-86781318,86951196传真:0517-86951198邮箱:dinghaifeng163@163.com

技术支持:给览网
苏ICP备16018834
点击这里给我发消息

点击这里给我发消息